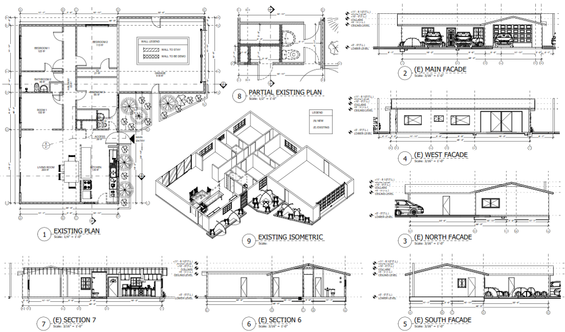
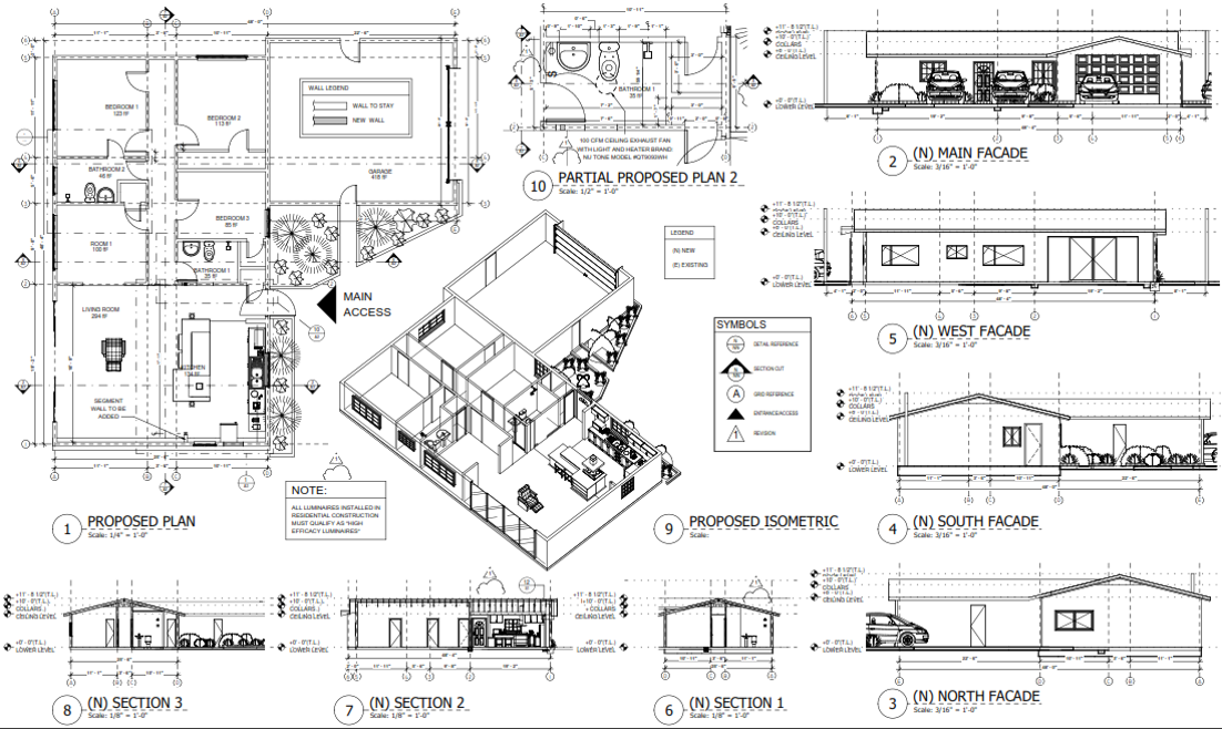
Franco Structural & Architectural Design
Lorinda Residence
Open Concept
Buena Park, CA.
Click and Drag the arrow to see the before and after.
COMPARATIVE VIEW
Let's Build Together
info@frasarq.com
+1 (714) 928-1448
We accept all major credit cards






