Franco Structural & Architectural Design
Zazu Project
Shop Drawings
Anaheim, CA 92708.
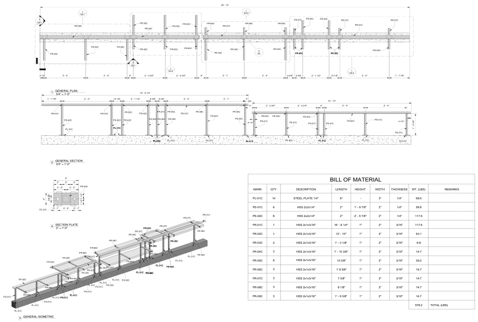
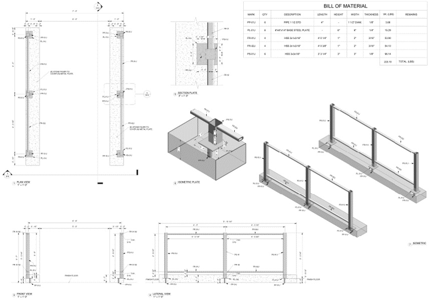
Zazu Project consisted in a full remodeling to the Hawaiian Tiki Bar in Disneyland Park according to the latest building codes for earthquake reinforced structures. Every aspect of the bar was structurally updated and we created the shop drawings for the making of structural elements designed for the bar.
Let's Build Together
info@frasarq.com
+1 (714) 928-1448
We accept all major credit cards
















