Franco Construction
Moontide Residence
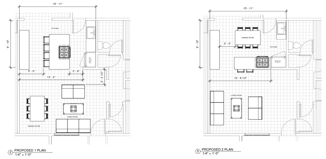
Open Concept
Huntington Beach, CA 92646
Click and Drag the arrow to see the before and after.
COMPARATIVE VIEW
RENDERS
DESIGN APPROACH
Construction
COMPLETED PROJECT
Let's Build Together
info@frasarq.com
+1 (714) 928-1448
We accept all major credit cards






























