Franco Construction
King Arthur
Inside Remodeling Two Story Home
Palos Verdes, CA
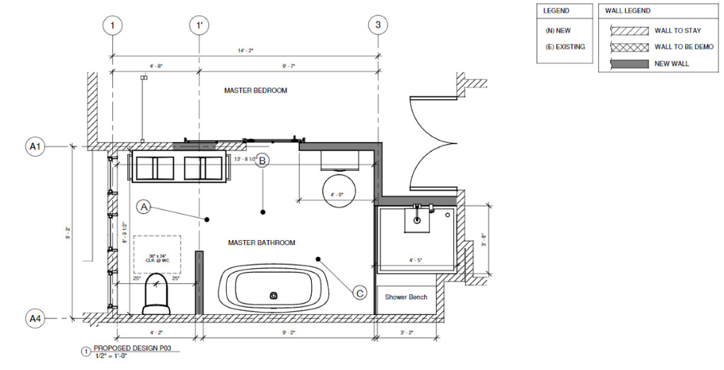
SCOPE OF WORK: 1 Master Bathroom fully expanded along with new walk-in closet and new access to exterior deck.
Click and Drag the arrow to see the before and after.
COMPARATIVE VIEW
Click and Drag the arrow to see the before and after.
COMPARATIVE VIEW
APPROVED DESIGN PROJECT
Demolition Phase
FRAMING
NEW ELECTRICAL AND PLUMBING
DRYWALL AND INSULATION
FINISHED FLOOR AND TILE
DESIGN BECOMES REALITY
VIDEOS
Let's Build Together
info@frasarq.com
+1 (714) 928-1448
We accept all major credit cards















































