Franco Construction
Valle Vista Dr
ADU – JUNIOR
(Accessory Dwelling Units)
Chino Hills, CA.
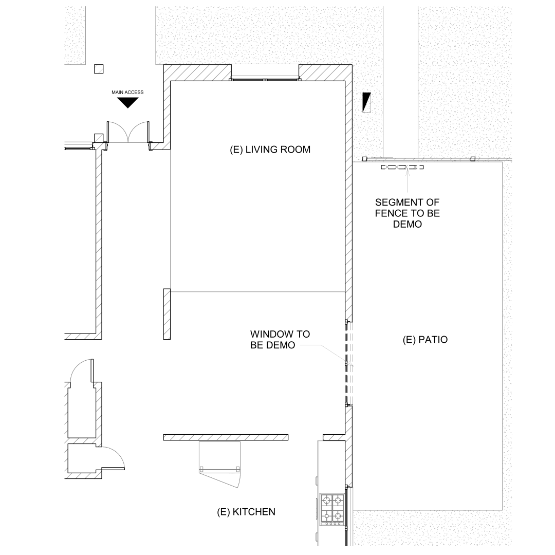
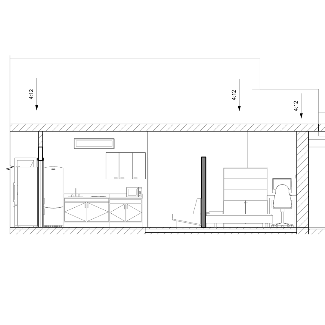
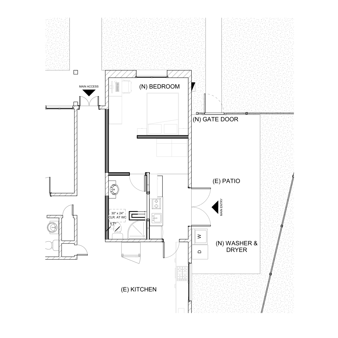
SCOPE OR WORK: New Jr. ADU inside the house. Request to permit exterior clothes washer/dryer hookup.
Let's Build Together
info@frasarq.com
+1 (714) 928-1448
We accept all major credit cards















