Franco Construction
Paseo Corrales
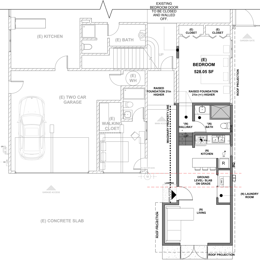
ADU – ATTACH
(Accessory Dwelling Units)
San Juan Capistrano, CA.
SCOPE OR WORK: ADU enlargement of existing guest room to create new one: livin room, dining room, complete bathroom & kitchenette and own washer & dryer.
Click and Drag the arrow to see the before and after.
COMPARATIVE VIEW
Let's Build Together
info@frasarq.com
+1 (714) 928-1448
We accept all major credit cards

















