Franco Structural & Architectural Design
Ixtapan Residence
Full House Rennovation
San Miguel Laderas,
Estado de México, México 51900.
Click and Drag the arrow to see the before and after.
COMPARATIVE VIEW
DESIGN APPROACH
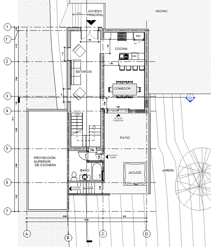
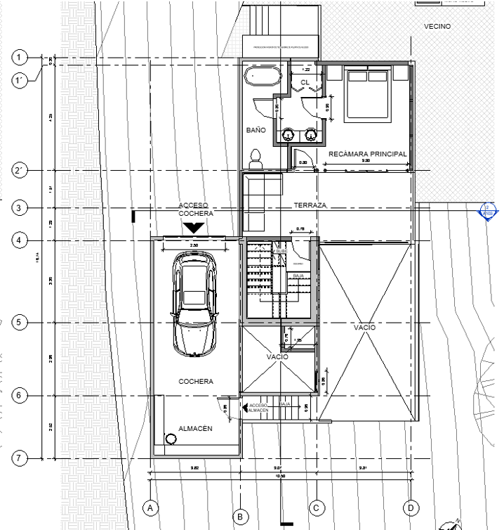
Proposal
INTERIOR DESIGN
Let's Build Together
info@frasarq.com
+1 (714) 928-1448
We accept all major credit cards
























